পবিত্র কাবা শরিফের অজানা ১০টি তথ্য
সমগ্র বিশ্বের মুসলমানদের জন্য কাবা শরিফ পবিত্র তীর্থস্থান। এটি সৌদি আরবের পবিত্র মক্কা নগরীর মসজিদে হারামের অন্তর্গত। পবিত্র কাবা শরিফের অজানা ১০টি তথ্য নিয়ে এই অ্যালবাম সাজানো হয়েছে।
-
মুসলমানদের ক্বিবলা কাবা শরিফ সম্পর্কে আশ্চর্যজনক ১০টি বিষয় রয়েছে। অনেকেই এ সম্পর্কে অবহিত নয়।
-
পবিত্র কাবা শরিফ কয়েকবার প্রাকৃতিক বিপর্যয় বন্যা এবং আক্রমণের কারণে ক্ষতিগ্রস্ত হয়েছে। ফলে পবিত্র কাবা কয়েকবার পুনর্নির্মাণ করা হয়েছে।
-
ঐতিহাসিক তথ্য হলো কাবা শরিফ এ পর্যন্ত ১২ বার পুনর্নির্র্মিত হয়েছে। বিভিন্ন বিপর্যয়ের হাত থেকে সংরক্ষণ করতে কাবা শরিফকে সর্বশেষ ১৯৯৬ সালের আধুনিক ও শক্তিশালী প্রযুক্তির ব্যবহারে সংস্কার করা হয়।
-
কিসওয়া হলো কালো রঙের কাপড়। যা দ্বারা কাবা শরিফ ঢেকে দেয়া হয়। কিন্তু আপনি জানেন কি? এ কিসওয়া সব সময় কালো ছিল না। জরহাম গোত্রের শাসনামলে তাদের নিয়মানুযায়ী কিসওয়া দ্বারা কাবা শরিফের আচ্ছাদন সর্বপ্রথম শুরু হয়।
-
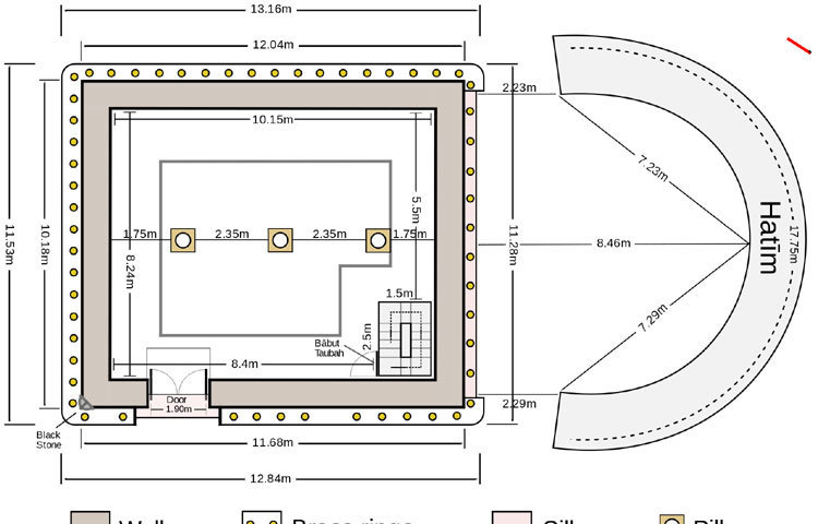
হজরত ইবরাহিম আলাইহিস সালামের আমল থেকেই মূলত পবিত্র কাবা শরিফ আয়তক্ষেত্র আকৃতির ছিল। ইসলামের আগমনের পূর্বে কুরাইশরা যখন পবিত্র কাবাকে পুনর্র্নির্মাণ করেন।
-
পবিত্র কাবা শরিফ হজরত আদম আলাইহিস সালাম, ইবরাহিম আলাইহিস সালাম, ইসমাইল আলাইহিস সালাম এবং হজরত মুহাম্মদ সাল্লাল্লাহু আলাইহি ওয়া সাল্লাম যুগে যুগে কাবা নির্মাণে অংশগ্রহণ করেছিলেন।
-
পবিত্র কাবা শরিফের কোণে সংযুক্ত ‘হাজরে আসওয়াদ’ কালো পাথরটি বড় ছিল। বর্তমানে এ পাথরটি ভেঙে ৮ টুকরায় বিভিন্ন সাইজে বিভক্ত। যা একটি সিলভার রংয়ের ফ্রেমে একত্র করে কাবা শরিফের পূর্ব-দক্ষিণ কোণে লাগানো।
-
প্রাক ইসলামি যুগ থেকে এখন পর্যন্ত কাবা শরিফের চাবি একটি পরিবারের কাছেই রয়েছে।
-
বছরে দুই বার এ পরিষ্কার-পরিচ্ছন্নতার কাজ করা হয়। প্রথমবার করা হয় শাবান মাসের আর দ্বিতীয় বার করা হয় জিলকদ মাসে। এ পরিষ্কার পরিচ্ছন্নতা কার্যক্রম বনু তালহা তথা আলশিবি পরিবারের লোকেরাই করে থাকেন।
-
পবিত্র কাবা শরিফের দরজা সবার জন্য উন্মুক্ত ছিল। মানুষ পবিত্র এ ঘরে প্রবেশ করে ইবাদাত-বন্দেগি করতো। হজের সময় তীর্থযাত্রীরা ইচ্ছা করলে এতে প্রবেশ করতে পারতো।